Your address will show here +12 34 56 78
CulturalePublic

Nuova Biblioteca Comunale di Greve


WHERE

Greve in Chianti (FI) - Italy

WHEN

date progetto / 2006 - 2007
date lavori / 2008 - 2011

WHO

Progettista / MDU architetti
Consulenti /
Progetto impianti / Gianluca Gori
Progetto strutture / Alessandro Incerpi
Progetto sicurezza / Fabio Alinari
Committente / comune di Greve in Chianti

WHAT

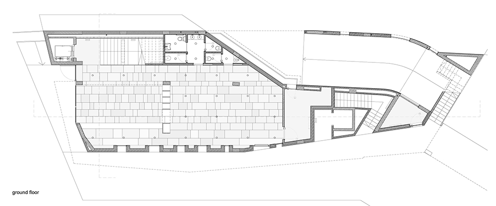
Dati intervento / superficie totale 420 mq, volume 1.780 mc

L’immagine architettonica della biblioteca è riconducibile a due temi: la solidità del basamento in pesanti blocchi di travertino e la leggerezza del volume traforato in terracotta sovrastante. Il basamento ospita un ampio atrio di ingresso a doppia altezza, il bancone per le informazioni e il prestito, e una grande libreria alta due piani che divide l'ingresso, dall’ufficio amministrativo e dalla ludoteca. Al piano superiore, all’interno del volume in cotto, troviamo la sala di lettura che si affaccia sul vuoto centrale a tutta altezza e dove la disposizione attenta delle librerie consente di ospitare le diverse funzioni di lettura e studio in ambiti separati ma visivamente comunicanti tra di loro. L'ingresso della luce naturale all'interno della sala di lettura viene filtrata e diffusa attraverso le pareti-diaframma in cotto. All'esterno queste stesse pareti si presentano ricche di fenditure i cui ritmi chiaroscurali danno vita ad un’affascinante variazione materica che arricchisce l’immagine contemporanea complessiva dell’edificio. Al calare del sole il volume in cotto si accende internamente e svela, in negativo, la sua trama di vuoti e cavità, configurandosi come una piccola lanterna, un visibile segno luminoso che brilla nel mare della campagna Toscana.